PODSTAWY BUDOWNICTWA,
KONSTRUKCJE BUDOWLANE,
BUDOWNICTWO
Projekty wykonywane przez studentów I stopnia w Katedrze Nauki i sztuki Projektowania na Wydziale Architektury Wnętrz z przedmiotów obligatoryjnychPostawy budownictwa, Konstrukcje budowlane oraz Budownictwo służą doskonaleniu przez studentów wiedzy z zakresu metodyki projektowania architektoniczno-budowlanego, zdobywaniu umiejętności opracowania dokumentacji projektowej architektonicznej w fazie budowlanej zgodnie z wymaganiami zawartymi w obowiązujących aktach prawnych. Rozwiązywanie problemów konstrukcyjnych, budowlanych i materiałowych związanych z kształtowaniem wnętrza architektonicznego i jego komponentów strukturalnych i uzupełniających zgodnie z programem funkcjonalno-przestrzennym. obejmującego zagadnienia funkcjonalne i strukturalne komponentów budowlanych z uwzględnieniem podstaw fizyki budowli, poprzez problemy mechaniki budowli, w tym zasady statyki elementarnej, wytrzymałości materiałowej i technologii budowlanych wpływających na właściwy dobór i kształtowanie i elementów konstrukcyjnych, aż do rozwiazywania problemów funkcjonalnych i technicznych związanych z kształtowania detalu architektonicznego struktur przestrzennych.
Podstawy budownictwa_I st._1rok_S
Temat:
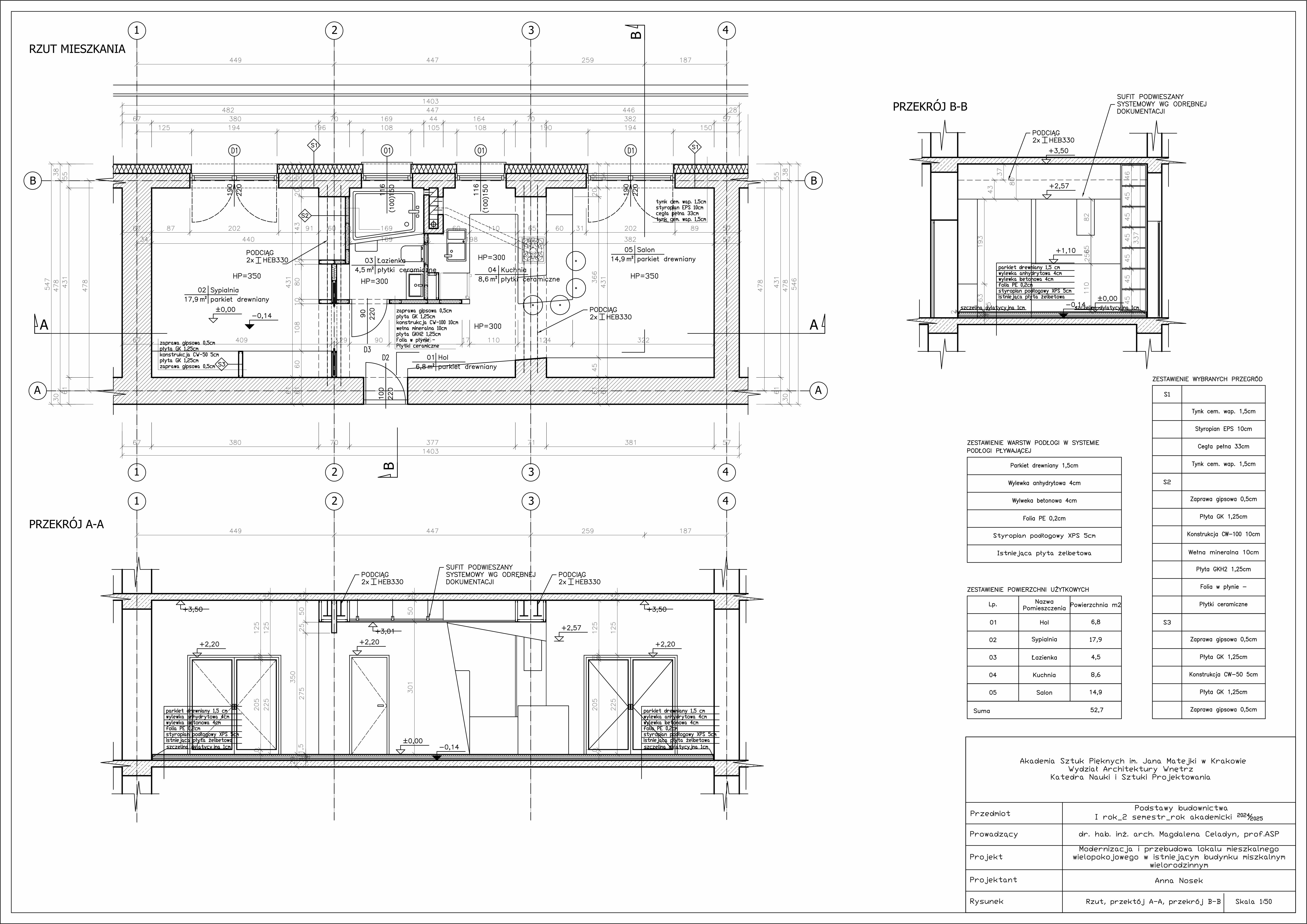
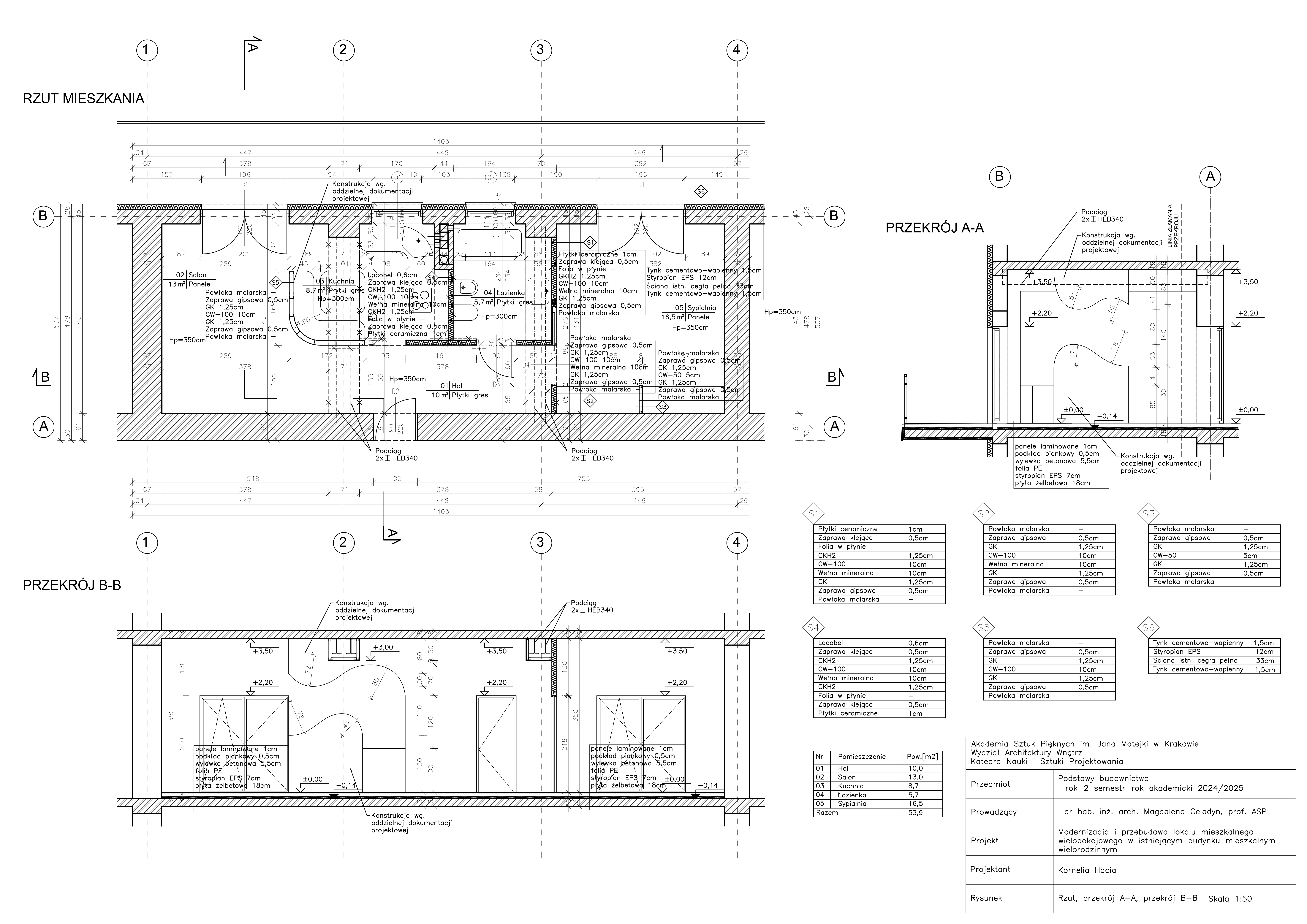
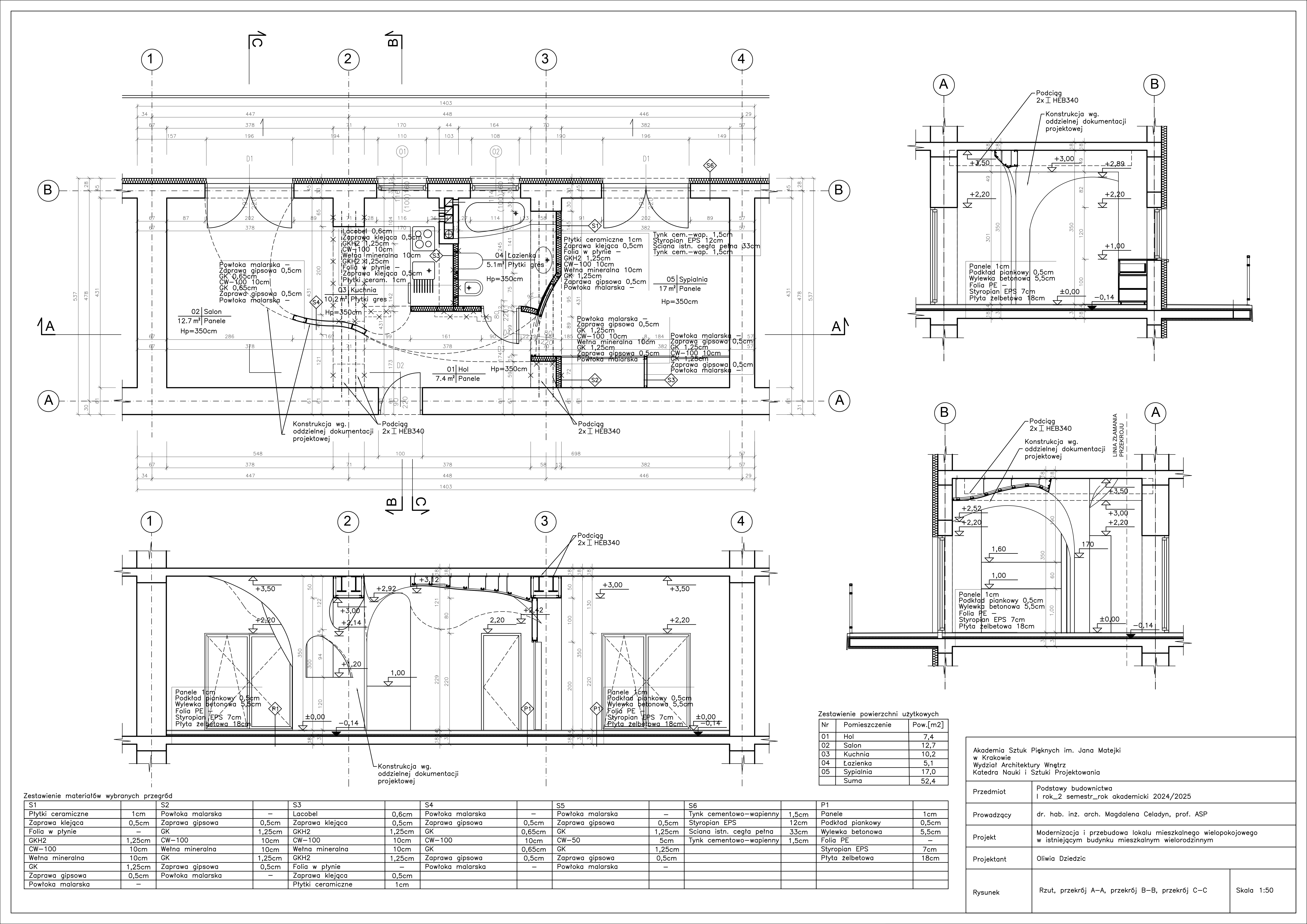
Modernizacja i przebudowa istniejącego lokalu mieszkalnego w budynku mieszkalnym wielorodzinnym. Zastosowanie konstrukcji stalowych cienkoprzekrojowych w kształtowaniu nowych wielofunkcyjnych wewnętrznych przegród.
Modernizacja i przebudowa istniejącego lokalu mieszkalnego w budynku mieszkalnym wielorodzinnym. Zastosowanie konstrukcji stalowych cienkoprzekrojowych w kształtowaniu nowych wielofunkcyjnych wewnętrznych przegród.

Anna Nosek

Kornelia Hacia

Oliwia Dziedzic
Konstrukcje budowlane_I st._2rok_S
Temat 1:
Schody wewnętrzne wykonane z elementów konstrukcyjnych i wykończeniowych stalowych, zlokalizowane w istniejącej hali przemysłowej adaptowanej na cele wystawiennicze.
Temat 2:
Pomost komunikacji wewnętrznej wykonany z elementów konstrukcyjnych i wykończeniowych stalowych, zlokalizowany w atrium istniejącego obiektu handlowo-biurowego.
Schody wewnętrzne wykonane z elementów konstrukcyjnych i wykończeniowych stalowych, zlokalizowane w istniejącej hali przemysłowej adaptowanej na cele wystawiennicze.
Temat 2:
Pomost komunikacji wewnętrznej wykonany z elementów konstrukcyjnych i wykończeniowych stalowych, zlokalizowany w atrium istniejącego obiektu handlowo-biurowego.

Wiktoria Weselak

Patrycja Maciak

Julia Stala

Oliwia Golba
Budownictwo_I st._3rok_S
Temat:
Przestrzeń studialna - adaptacja pomieszczeń w modernizowanym budynku uczelni wyższej na sale umożliwiającą indywidualna prace projektową, konsultacje i nieformalne spotkania studentów.
Przestrzeń studialna - adaptacja pomieszczeń w modernizowanym budynku uczelni wyższej na sale umożliwiającą indywidualna prace projektową, konsultacje i nieformalne spotkania studentów.

Barbara Bachta, Julia
Bugajska, Natalia Jakubowska

Aleksandra Bosak,
Magdalena Filus

Sylwia Tokarz, Konrad
Porębski

Anastasyia Matsiuk

Paulina Bednarz