PODSTAWY BUDOWNICTWA,
KONSTRUKCJE BUDOWLANE,
BUDOWNICTWO
Projekty wykonywane przez studentów I stopnia w Katedrze Nauki i sztuki Projektowania na Wydziale Architektury Wnętrz z przedmiotów obligatoryjnychPostawy budownictwa, Konstrukcje budowlane oraz Budownictwo służą doskonaleniu przez studentów wiedzy z zakresu metodyki projektowania architektoniczno-budowlanego, zdobywaniu umiejętności opracowania dokumentacji projektowej architektonicznej w fazie budowlanej zgodnie z wymaganiami zawartymi w obowiązujących aktach prawnych. Rozwiązywanie problemów konstrukcyjnych, budowlanych i materiałowych związanych z kształtowaniem wnętrza architektonicznego i jego komponentów strukturalnych i uzupełniających zgodnie z programem funkcjonalno-przestrzennym. obejmującego zagadnienia funkcjonalne i strukturalne komponentów budowlanych z uwzględnieniem podstaw fizyki budowli, poprzez problemy mechaniki budowli, w tym zasady statyki elementarnej, wytrzymałości materiałowej i technologii budowlanych wpływających na właściwy dobór i kształtowanie i elementów konstrukcyjnych, aż do rozwiazywania problemów funkcjonalnych i technicznych związanych z kształtowania detalu architektonicznego struktur przestrzennych.
Podstawy budownictwa_I st._1rok_S
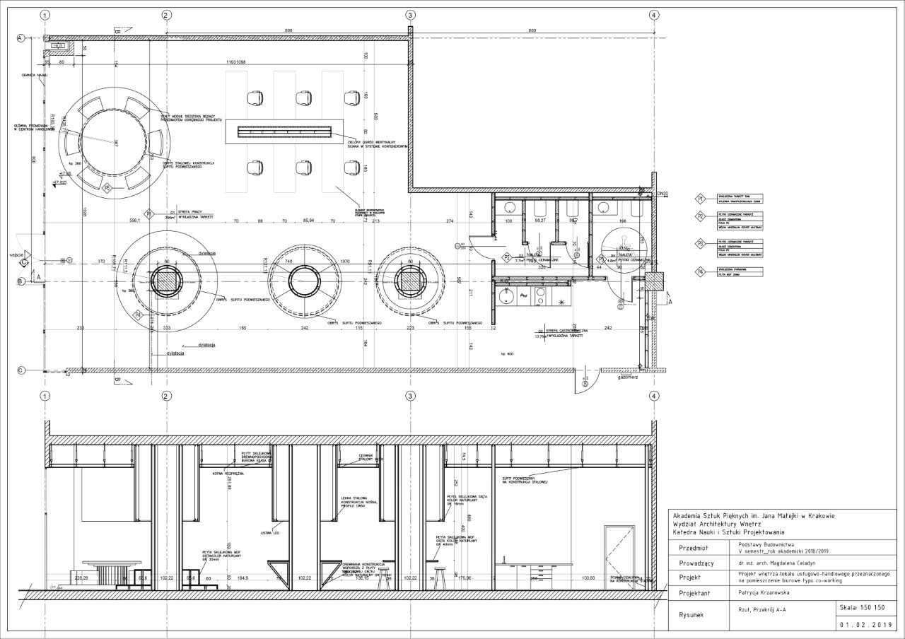
Temat:
Modernizacja i przebudowa istniejacego lokalu miszkalnego w budynku mieszkalnym wielorodzinnym. Zastosowanie konstrukcji stalowych cienkoprzekrojowych w ksztaltowaniu nowych wielofunkcyjnych wewnetrznych przegrod.
Modernizacja i przebudowa istniejacego lokalu miszkalnego w budynku mieszkalnym wielorodzinnym. Zastosowanie konstrukcji stalowych cienkoprzekrojowych w ksztaltowaniu nowych wielofunkcyjnych wewnetrznych przegrod.

Patrycja Krzanowska

Dagmara Jedrychowska,
Aleksandra Kotyła, Aleksandra Gierszewska

Ewelina
Biskup, Ewa Polak, Magdalena Swidnicka

Paulina Bednarz,
Alicja Majos
Konstrukcje budowlane_I st._2rok_S
Temat 1:
Schody wewnętrzne wykonane z elementów konstrukcyjnych i wykończeniowych stalowych, zlokalizowane w istniejącej hali przemysłowej adaptowanej na cele wystawiennicze.
Temat 2:
Pomost komunikacji wewnętrznej wykonany z elementów konstrukcyjnych i wykończeniowych stalowych, zlokalizowany w atrium istniejącego obiektu handlowo-biurowego.
Schody wewnętrzne wykonane z elementów konstrukcyjnych i wykończeniowych stalowych, zlokalizowane w istniejącej hali przemysłowej adaptowanej na cele wystawiennicze.
Temat 2:
Pomost komunikacji wewnętrznej wykonany z elementów konstrukcyjnych i wykończeniowych stalowych, zlokalizowany w atrium istniejącego obiektu handlowo-biurowego.

Emilia Lembicz,
Magdalena Swidnicka, Daria Wyrębska

Karolina Wasiluk,
Dominika Suchy, Liliana Alrae

Anastazja Wensierska

Jarosław Ibek

Katarzyna Gubała

Klaudia Nowak

Łukasz Pilecki
Budownictwo_I st._3rok_S
Temat:
Przestrzeń studialna - adaptacja pomieszczeń w modernizowanym budynku uczelni wyższej na sale umożliwiającą indywidualna prace projektową, konsultacje i nieformalne spotkania studentów.
Przestrzeń studialna - adaptacja pomieszczeń w modernizowanym budynku uczelni wyższej na sale umożliwiającą indywidualna prace projektową, konsultacje i nieformalne spotkania studentów.

Barbara Bachta, Julia
Bugajska, Natalia Jakubowska

Aleksandra Bosak,
Magdalena Filus

Sylwia Tokarz, Konrad
Porębski

Anastasyia Matsiuk

Paulina Bednarz